| 卖房 | 房源编号 | 中軽井沢 上ノ原高級別荘 |
|---|---|---|
| H-0357 |
| 价格 | 所在区域 | 土地面积 | 建筑物面积 | 房间格局 |
|---|---|---|---|---|
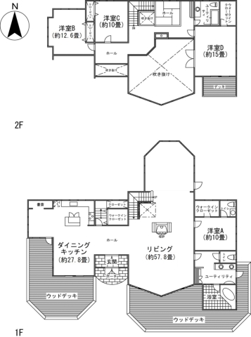
| 25,000万円 | 3475.89m2/1051.45坪 | 345.54m2/104.52坪 | 4LDK |
|
|
||
|
|
||
| 土地面积 | 3475.89m2/1051.45坪 | 建筑物面积 | 345.54m2/104.52坪 |
|---|---|---|---|
| 规划用地 | 第一種低層住居専用地域 | 构造 | 木造2階建て |
| 城市规划 | 非線引き区域 | 建成年月日 | 平成18年11月 |
| 建筑面积率 | 20%% | 使用状况 | |
| 容积率 | 20%% | 停车场 | 有 |
| 占有 | 接面道路 | 南側幅員約4mの道路に接道 | |
| 地形・眺望 | 私道负担 | 無し | |
| 房源地址 | 北佐久郡軽井沢町大字長倉 | ||
| 交通路线 | しなの鉄道中軽井沢駅より2.5km | ||
| 学 区 | 中部小学校、軽井沢中部小学校 | ||
| 设 备 | 中部電力、町営水道、LPガス、浄化槽 | ||
| 管理费等 | |||
| 其他限制備考/备注 | 軽井沢自然保護対策要綱及び長野県自然環境保護条例の制限有り | ||
| 说明事项 | |||
| 交易形态 | 媒介 | 更新日 | 2019/04/19 |
| ※物业编号自动显示在查询表格上。 | ※打印时,请根据打印机的纸张尺寸进行缩小。 |



























