軽井沢の別荘、分譲地、不動産情報を探すならエステート軽井沢

売建物 物件番号 北軽井沢泉が丘 美築別荘
H-0341
価格 エリア 土地面積 建物面積 間取り
1,580万円
850万円
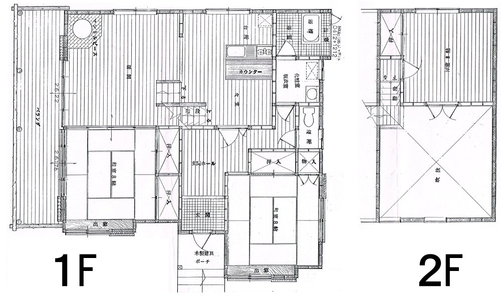
869m2/262.87坪 105.99m2/32.06坪 3LDK
図面画像1
土地面積 869m2/262.87坪 建物面積 105.99m2/32.06坪
用途地域 , 無指定 建物構造 木造
都市計画 その他区域 築年月 平成5年8月
建ぺい率 50% 現 況 成約済み
容積率 100% 駐車場 有  
 引き渡し時期 相談 接 道 幅員約4mの舗装道路に接道
地勢・眺望 平坦地 私道負担 無し
所在地 群馬県吾妻郡嬬恋村大字鎌原字湯本
交 通 中軽井沢駅から車で約30分
学 区
設 備 東京電力、町営水道、LPガス、合併浄化槽
管理費等
その他の制限、備考 自然公園法適用
コメント 鬼押出し園から浅間白根火山ルートを5~6分程上った左側の為、 軽井沢からも近い距離にあります。 中軽井沢駅から約22㎞(車で約30分) 管理棟から3~5分のところにあります。 リビングはスキップフロアで8帖の和室2部屋、8帖の洋室があります。 お部屋はすごくきれいです。
取引態様 媒介 更新日 2022/12/30
この物件について問い合わせする このページを印刷する
※問い合わせフォームに物件番号が自動的に表示されます。  ※印刷する際はご使用のプリンターの用紙サイズに合わせて縮小して下さい。

 軽井沢の別荘(建物)、分譲地(土地)をお探しなら不動産情報満載のエステート軽井沢にお任せ下さい

 

Copyright (c) 株式会社エステート軽井沢 All Rights Reserved.