軽井沢の別荘、分譲地、不動産情報を探すならエステート軽井沢

フィンランド・ログハウス 軽井沢展示場(平成26年完成)

株式会社エステート軽井沢の“Paddy’s Cafe”(パディーズ・カフェ)に次いで、国道18号線向かい側にポーラー・ライフ・ハウス(Polar Life Haus)の展示場兼宿泊施設を建設いたしました。今ヨーロッパで最も人気の高いフィンランド・ログハウスです。
ポーラー・ライフ・ハウスは2013年「夢の丸太小屋に暮らす」9月号の「北欧・フィンランド最新ログハウスを巡る」という特集記事で紹介された、100年の伝統を受け継ぐログハウスメーカーです。
森と湖の国で育った、木肌の美しいスプルース材を惜しげもなく贅沢に使った斬新なデザインをご覧いただけます。

軽井沢にお越しの際はお気軽にお立ち寄り下さい。

ポーラーハウス軽井沢

“Polar Swan 333”型 の「ポーラーハウス軽井沢」という宿泊施設です。
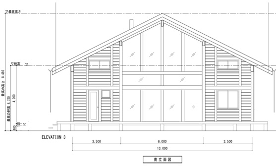
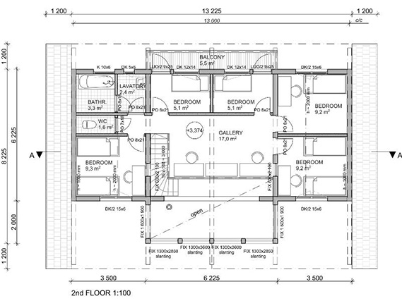
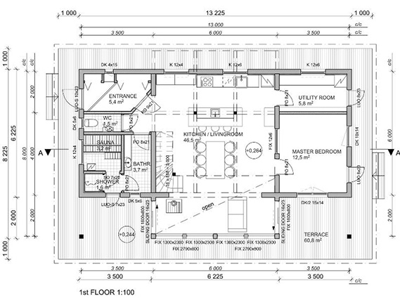
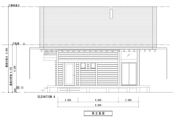
南北約8m、東西約13m、延床面積約50坪、南に面した開放的な大窓と白塗りのスプルースが特徴的。

軽井沢の気候ではオーバースペックともいえる太い角ログを積み上げ、窓や扉はすべてトリプルガラスになっているため冬も暖かく過ごせます。浴室とは別にシャワー、プライベートサウナ付きのフィンランド仕様となっております。

施設利用のない時はフィンランドログハウスの展示場として一般公開しております。
施設向かいの株式会社エステート軽井沢にお気軽にお問合せ下さい。

南側正面からの外観

南東側からの外観

北東側からの外観

1階平面図

2階平面図

フィンランドの提携ログメーカー Polar Life Haus

日本では春の訪れを間近に感じる3月フィンランドはまだ真っ白い雪に覆われていた。
ヘルシンキから東へ約350km離れた中部の町トウサ市にあるログメーカー「ポーラー・ライフ・ハウス(Polar Life Haus)社」を訪ねた。我々はポーラー・ライフ・ハウス社の用意してくれたヴィラット市のゲストハウスに滞在した。このヴィラット市は画家の東山魁夷が1963年に滞在した街として知られている。

“フィンランドの人々は、その国を(スオミ)と呼ぶ。幾万と数知れぬ湖、果てしなく続く樅の森。湖と湖をつなぐ運河。白樺を焚いて航行する湖水巡りの船。湖畔に映える夏至祭の焔は、この国の夏を称える喜びに満ちた瞬間である。この焔が燃えつきる時から、日毎に夜は長くなり、冬への傾向がはじまる。北方の白い首都と呼ばれるヘルシンキ、湖沼地帯の明るい町サリヴォンリンナ、城下町の町のヘーメンリンナも忘れられない。”と魁夷は旅の感想を書いている。

私はポーラー・ライフ・ハウス社の宿泊施設であるゲストハウスが余りにも古い建物であったので訪ねてみたところ「1907年に木材生産を開始した頃の最初のログハウスで現在も使っている」との事であった。つまり、106年前に立てられたログハウスという事である。以前フィンランドを訪れたときヘルシンキ郊外にある「セウラサール野外博物館」へ立ち寄った。博物館にはフィンランド各地から移築された18~19世紀の古い家屋や教会があり、それを見て驚いたが、ここでは106年前の建物が今でも当たり前のように使われているのである。

提携先のログメーカーの視察はカナダに次いで2回目である。フィンランドはカナダと違いダグラスファーとかウエスタン・レッドシダーなどという材木は無く、主にパイン材とスプルース材が主流である。なかでも木肌の美しいスプルース材は日本でもなじみの集成材として今やヨーロッパ市場で脚光を浴びている。ヘルシンキからトウサまで車で約5時間の道のり、パインとスプルースの森が続く。魁夷が「果てしなく続く樅の森。湖と湖をつなぐ運河。・・・」と表現した事が実感できる。

なぜ我々が数あるログハウスメーカーからポーラー・ライフ・ハウス社を選んだかというと

①100年以上の実績(伝統・技術・知識)がある事。
②最新鋭の高性能加工機 Hundegger K2i(フィンランドでまだ1台しかない)を導入。
③スプルース材の利用を可能にした集成材技術の高さ、製品管理の一貫性

などが挙げられる。カナダの提携先ログメーカー「スパーリック・ログ」もその規模の大きさが我々の想像を遥かに超えていたが今回も同じことが言える。

(当社でログハウスをご注文された方、またはご検討していただいている方はご希望により、現地見学ツアーもご用意しております。株式会社エステート軽井沢までお問合せ下さい。各自実費負担となります)

ポーラー・ライフ・ハウスのゲストハウス(1907年築)の外観

ポーラー・ライフ・ハウスのゲストハウス内観

ポーラー・ライフ・ハウスのゲストハウス客室

ポーラー・ライフ・ハウスのゲストハウス リビング暖炉

ポーラー・ライフ・ハウスのゲストハウス・キッチンストーブ

東山魁夷がリトグラフで描いたヴィラットの教会

ポーラー・ライフ・ハウス社 沿革

1907年 木材の生産を開始し、製材工場を設立。創設者が最初のログハウスを建て居住。
    (現在、ポーラー・ライフ・ハウス社のゲストハウスとして利用されている)
1965年 ログハウスの生産を開始。フィンランド国内はもとより、ドイツ、フランス、オーストリアを筆頭にヨーロッパ各地に輸出。
1990年 丸太からログハウスまでの一貫した生産ラインが完成。
     この頃、ログの製材工場がフィンランド西部のレヘティマキ市に、加工工場が中部のトウサ市に開設。
1992年 ~
1998年 ドイツ市場をターゲットに輸出部門を強化。この頃クオリティの高さが向上。
1998年 フィンランドのログ業界に先駆けて、1ミリ単位のログ材加工を可能にする「Hundegger (高性能加工機)」を導入。
2001年 プレカットシステムを用いた木造住宅の生産を開始。
2005年 ポスト&ビームの生産を開始。輸出が前販売高の50%をしめる。
2008年 フィンランドで唯一の「Hundegger K2i (高性能加工機)」を導入。
2011年 ログハウス業界で最大級の集成材(400×270mm)を標準ログ材とし500mmも製造可能に。
2013年 軽井沢にポーラー・ライフ・ハウスの展示場を開設し、日本市場に本格参入。

ポーラー・ライフ・ハウス社

原木のストックヤード/近くの山から切り出されたスプルース材

ポーラー・ライフ・ハウス社の製品ストックヤード

ポーラー・ライフ・ハウスが誇る最新鋭設備「Hundegger K2i」

集製材の生産ライン

全てコンピューターのデータを基に加工されるスプルース材

大型重機がポーラー・ライフ・ハウス社のヤード内を行き交う

ヨーロッパの各国に大型コンテナー車で運ばれるスプルース材

夢丸12013年9月号の特集号に載ったポーラー・ライフ・ハウスPolar Swan 225型

Polar Swan 225型 リビングルーム

Polar Swan 225型 リビングルーム

Polar Swan 225型 キッチンルーム

別棟に建てられたサウナハウス

サウナハウスからの眺め / 一面凍った湖

サウナルーム

フィンランドの朝焼け

ポーラー・ライフ・ハウス社 ログハウス モデルプラン集

御好きなタイプから基本プランを探し、自分にあった間取りに変更可能です

Aurinko-125

Koski -148

Country - 153

Niitty - 225

豊富なログ材の種類

ポーラー・ライフ・ハウス社には製品化されたログ材の種類が豊富です。
また、ログハウス業界最大の集成材400x270mmも利用可能です。

ポーラー・ライフ・ハウス社のニューモデルログハウス

木目の美しいスプルース材の太いログを使ったヴィラ

ポーラー・ライフ・ハウス社のニューモデルログハウス / プラスヴィラ

天井に木肌の美しいスプルース材を使用したヴィラ

ポーラー・ライフ・ハウス社のニューモデルログハウス / プラスヴィラ
基礎の部分を大きく取り、高床形式に作られたヴィラ

「グッドデザイン賞」&「Fennia賞」を受賞した「プラスヴィラ」シリーズ
  21世紀型フィンランド・ログハウスとしてモダンなデザインが特徴です。

設計担当者の声

「ご満足していただける住宅は納得のゆく住宅設計から生まれるものです。敷地環境やかぞくのそれぞれのニーズを把握し、早い段階から家づくりのお手伝いをさせていただきます。お客様のご予算に合わせて設計を行います。家の設計段階から完成にいたるまで、幅広くサービスを提供いたします。プランニングの出発点として、カタログからモデルプランを選んでいただくほか、自由設計も受け承ります。様々なモデルプランの中から、お客様にもっとも相応しいプランを見つけることに挑戦したいと思っております。時間を越えるプランニング、スタイリッシュなディテール、機能美あふれる住空間を目指しております。ログ材を住宅の壁に使うことで、木のもつ浄化作用により室内の空気が常にきれいに保たれます。環境にやさしい木の家での心地よい暮らしが世代から次世代に住み継がれてゆく事のお手伝いができることを誇りに感じております。」
談:ポーラー・ライフ・ハウス社 設計担当者 Janne Kantee (ヤンネ・カンテー)

<参考資料>
最高位の信用格付け「AAA」を取得
ポーラー・ライフ・ハウス社は格付け機関Soliditetの最高位の信用格付けである「AAA」格を取得しています。「AAA」格を取得するには、企業の債務の安全性、債務履行の確実性、事業活動の内容などの条件を十分に満たすことが必要です。(現在「AAA」取得企業は3,5%)

数々のデザイン賞を受賞
ポーラー・ライフ・ハウス社のプラスヴィラは「Good Design Awards」や「Fennia Prize」などを受賞しています。

環境への取組みと環境への配慮
ポーラー・ライフ・ハウス社はフィンランドで実施されている「プラスフォレスト」政策に参加しております。この政策では「1本の木を切ったら、3本の木を植えなさい」という決まりを定めています。ポーラー・ライフ・ハウス社も地球上の多くの森林が人間の都合により開発され、そのことが地球温暖化へとつながってゆくことに反対しております。ポーラー・ライフ・ハウス社は集成材の加工においても、厳しい気候や環境にも耐えることができる接着面を作れる最先端技術のRotoles Systemを最大限に使い、接着剤には安全な非ホルムアルデヒド系のPurbondを使用しています。

ポーラー・ライフ・ハウス社の理念
現在60人を越えるログハウスビルダーが100年以上にわたり受け継がれてきた木材加工の伝統と技術を守りながら、日々繰り返される製品開発や商品管理を基にお客様に満足して頂ける事を自分の喜びとして働いております。どうぞ日本の皆様“シンプルで洗練されたデザインのフィンランド・ログハウス”を宜しくお願い致します。

(President:Harri Vainionpaa)

 軽井沢の別荘(建物)、分譲地(土地)をお探しなら不動産情報満載のエステート軽井沢にお任せ下さい
 

Copyright (c) 株式会社エステート軽井沢 All Rights Reserved.